台科资讯 | 郑州台科产业园二期项目17#楼喜封金顶!

时间:2017-04-13 10:02 点击次数:8958次

         2017年4月12日,台科产业园迎来一个喜庆的日子:二期项目17#楼喜封金顶!

        上午10点,17#楼顶层通过验收后,正式开始混凝土浇筑,标志着17#楼正式封顶!同时,这也是台科产业园二期项目工程开工以来封顶的首栋建筑。

        据悉,郑州台科产业园二期项目于2016年10月27日正式开建,总占地46.83亩,建筑面积9.6万平方米,物业类型包含四组合花园独栋、双拼式花园独栋、公寓和商务酒店,面积在1500-6000平方米。

        目前,郑州台科产业园二期项目正在火热招商中,详情请咨询:0371-56568888

17#楼

17#楼楼顶浇筑混凝土



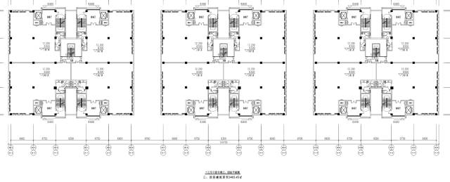
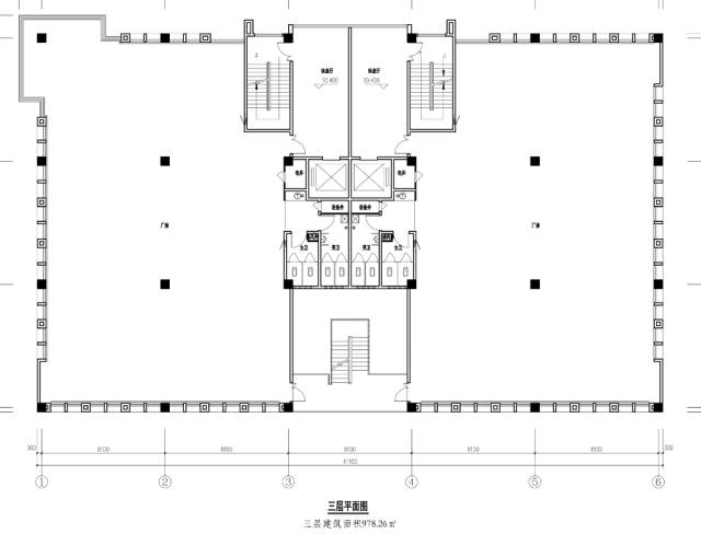
台科产业园二期项目部分楼层户型



13#、14#楼部分楼层

15#-18#楼部分楼层

19#楼部分楼层


郑州台科产业园二期项目建成后

“美得不像实力派”







上一页: 国家刚刚明确!郑州将被打造为国际性...

下一页: 服务企业发展郑州台科产业园金融平台...